• Hungary Taborfalva 40km`s from Budapest, for sale horse riding-farm

  • Hungary Taborfalva 40km`s from Budapest, for sale horse riding-farm
  • Hungary Taborfalva 40km`s from Budapest, for sale horse riding-farm
  • Hungary Taborfalva 40km`s from Budapest, for sale horse riding-farm
  • Hungary Taborfalva 40km`s from Budapest, for sale horse riding-farm
  • Hungary Taborfalva 40km`s from Budapest, for sale horse riding-farm
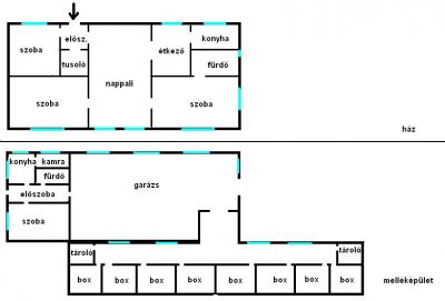
  • Hungary Taborfalva 40km`s from Budapest, for sale horse riding-farm 3 rooms + living room. Stable have 8 boxes. Also have an outbuilding with 1 room, kitchen and bathroom. On 13,6427 hectare available a sport ground, swimming pool. number: Tisza 213, price: € 230.000,- Other details: Segment of city: Outside of the centre Type of realty: house, homestead, summer house Year of building:1950 Year of renovation:2004 Living quarters 470m2 Ground-plot:136427m2 Number of rooms:3 + living room + kitchen and dinner room Bathroom:2 + 2 toilets’ Balcony: covered terrace 1 Garage Cellar:140m2 Outbuilding: stable with 8 horse boxes + house in the building Made of: brick and Wajong ( loam ) Mode of heating: gas + fireplace Kind of roof: tile Water supply: drilled well Electricy:220-380 V Telephone Satellite TV Internet/Phone connection is possibly Doctors, young Hungarians and foreigners residing in Hungary speak English/German
    • USD
  • (Use contact form below)

Related ads

M4Metals is a fully updated website with weight and dimensions chart of stainless...

;

7Search PPC allows an Advertiser to promote his Real Estate business Site or APP....

550

USD

As friendly environmental factors and different conveniences will work on over the...

;

MOST POPULAR

LC Real Estate Group was originally founded in 1996 with a focus on commercial and...

;

Mahindra LifespacesNew Launch “MAHINDRALUMINARE” Sector – 59, Gurgaon 9555077777...

11660

USD

Sunset Strip Realty offers You All the World Class Amenities at One Place in Beverly...

;
Formular de contact
  • Your Email:
    Your Name:
    Message:

Comments